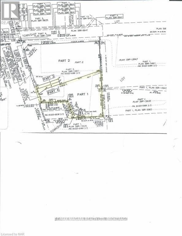
V/L PORTAGE ROAD E
📍 V/L PORTAGE Road, Niagara Falls (Cherrywood), Ontario, Canada, L2E6A4, 793, 82, L2E6A4
1688000.00
1.24
Lot Size
Land Description
SELLER WILL HOLD MORTGAGE AT A FAVORABLE RATE (TBN) FOR A 5 YEAR TERM; PROPERTY IS ZONED COMMERCIAL BUT WILL ALLOW A MIXED USE OF COMM & RESIDENTIAL. THE LOT IS 3/4 FENCED AND PAVED WITH LIGHT POLES INSTALLED. IDEAL LOCATION FOR AN OFFICE BUILDING OR A MIXED USE BUILDING APPROX 10-15,000 SQ FEET OF COMMERCIAL SPACE WITH RESIDENTIAL UNITS ABOVE; THERE IS A DEEDED ACCESS THROUGH THE ADJOINING PROPERTY( NO NEED TO CREATE A NEW ENTRANCE ONTO THE PROPERTY) (id:62692)



