UNIT 3 – 159 WELLINGTON STREET
📍 159 Wellington Street, Kingston (Central City East), Ontario, Canada, K7L3E1, 1211, 82, K7L3E1
700
Total Sq Ft
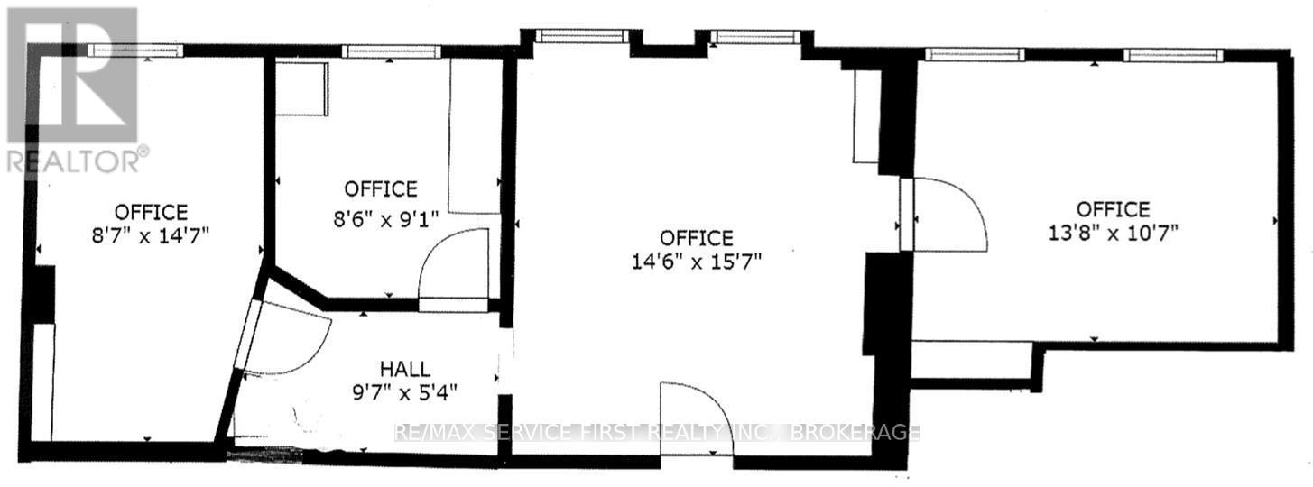
Office Description
Prime, affordable downtown Kingston office space situated in a wonderful downtown historic building. Well positioned within walking distance to all amenities, this second floor space is ideal for any professional service wanting a foothold in the thriving downtown core. Great window space and layout allows for reception and private offices. With all the new high density construction projects now being built and planned for the downtown, this will make an ideal spot for any business. The rent is inclusive of all costs except hydro. Landlord will offer 2 MONTHS OF FREE RENT FOR A MINIMUM 14 MONTH LEASE. Opportunity to combine the adjacent office space to have approx. 1400 sq ft. (id:62692)





