LOT 51 WELLINGTON STREET
LOT 51 WELLINGTON STREET
LOT 51 WELLINGTON STREET
Vacant Land

LOT 51 WELLINGTON STREET

📍 Lot 51 Wellington Street, Newbury, Ontario, Canada, N0L1Z0, 1497, 82, N0L1Z0

249000.00

0

Lot Size

Land Description

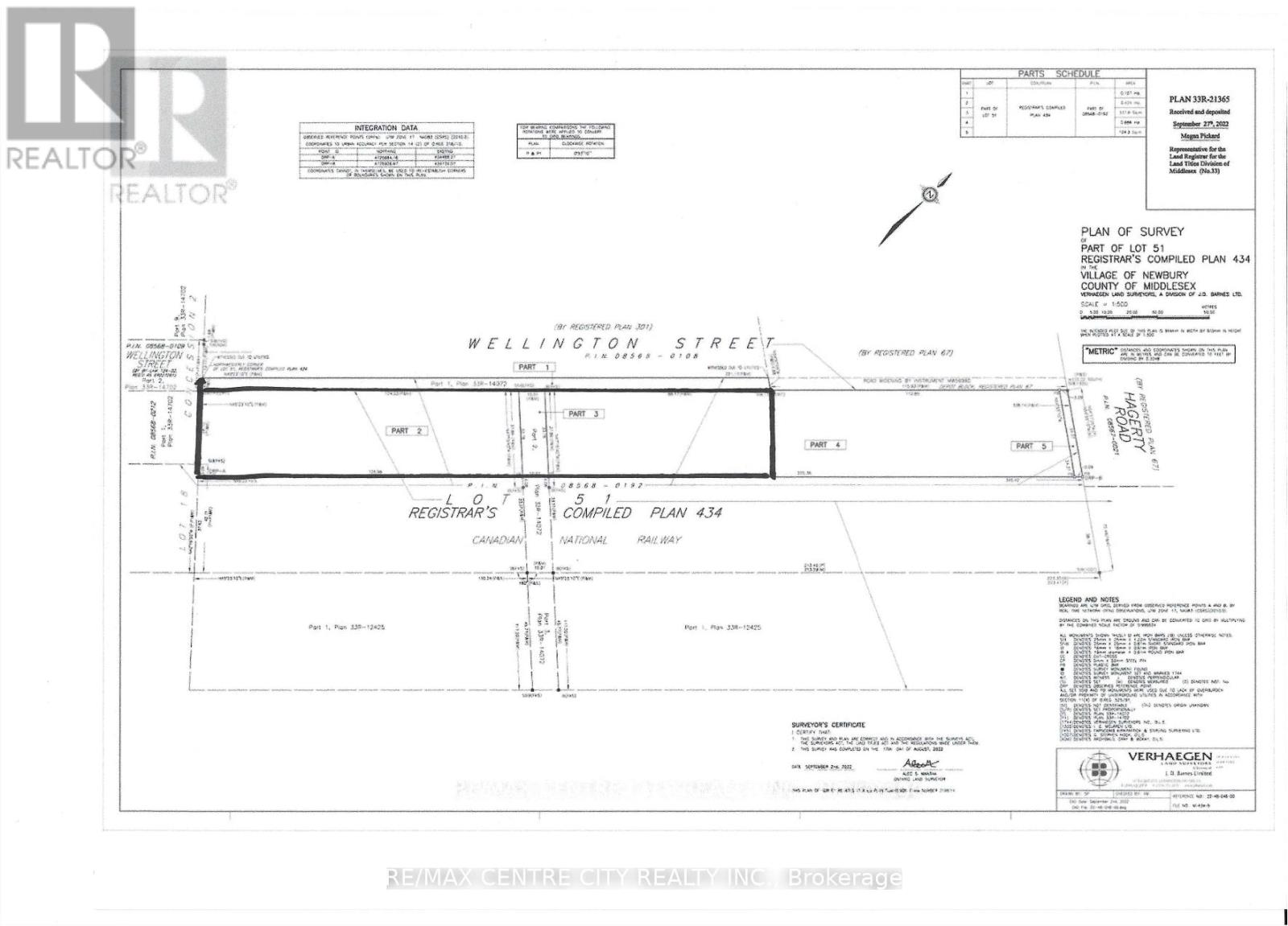
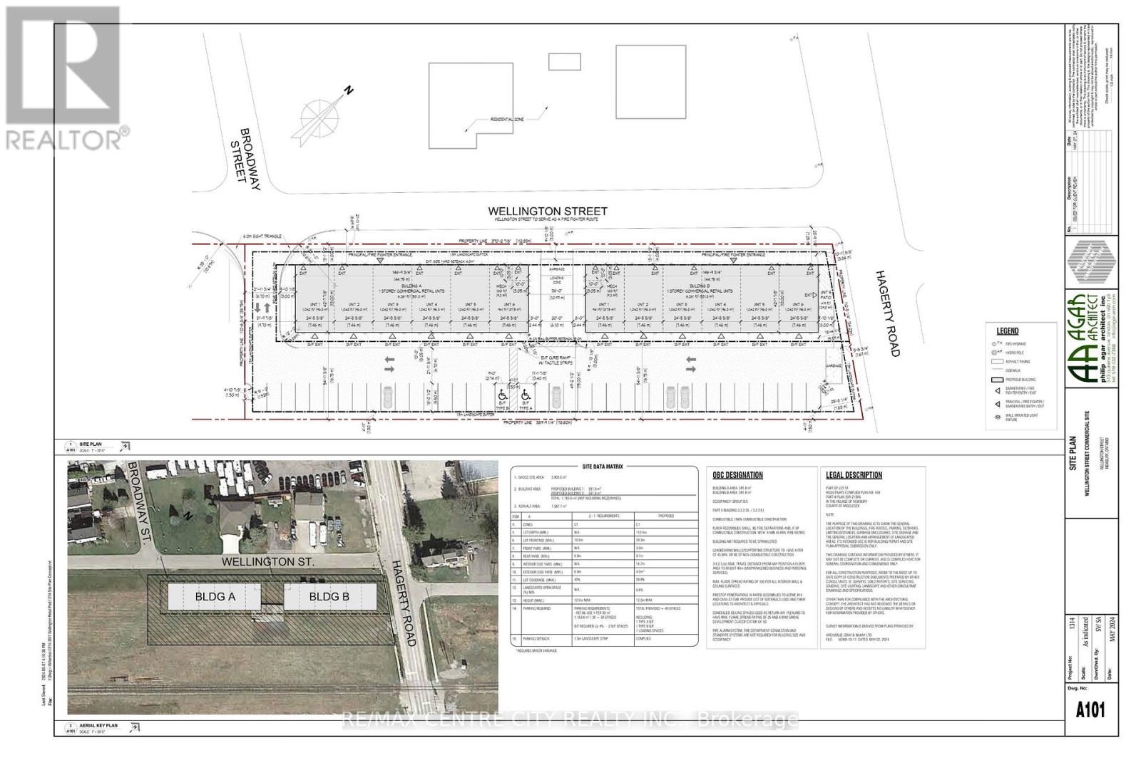
Located in the village of Newbury, near the corner of Wellington Rd and Wellington St, this 1.8 acre property has a frontage of 729 Ft ( 222.2M ) along Wellington St. Currently Zoned R-1 Residential. The Village is in the process of upgrading their Official Plan and Zoning Bylaw that will allow other uses on the property. The owner has suggested a commercial zoning to allow self storage consisting of five buildings totaling 21,500 sq ft, although no submission has been made to the Village for this proposal. All services are available on Wellington Street. The Village does not have development levy charges. Village amenities include the Four Counties Middlesex Hospital and and the areas largest Home Hardware store. The adjacent 1.0 acre lot fronting on Hagerty Road, is also available and is zoned C-1 Commercial. Property taxes are for both properties. See MLS #X12341530. Plan of survey, proposed site plan and zoning details are available upon request. (id:62692)

Land Details

Sewer:Sanitary sewer

General

MLS#:28726821

Reset password

Enter your email address and we will send you a link to change your password.

Get started with your account

to save your favourite homes and more

Sign up with email

Get started with your account

to save your favourite homes and more

By clicking the «SIGN UP» button you agree to the Terms of Use and Privacy Policy

Create an agent account

Manage your listings, profile and more

Phone

Buyers will use it to contact you.

By clicking the «SIGN UP» button you agree to the Terms of Use and Privacy Policy

Create an agent account

Manage your listings, profile and more

Sign up with email
Powered by Estatik