B2-A/B/C – 432 KING STREET E
📍 432 King Street, Cobourg, Ontario, Canada, K9A1M6, 470, 82, K9A1M6
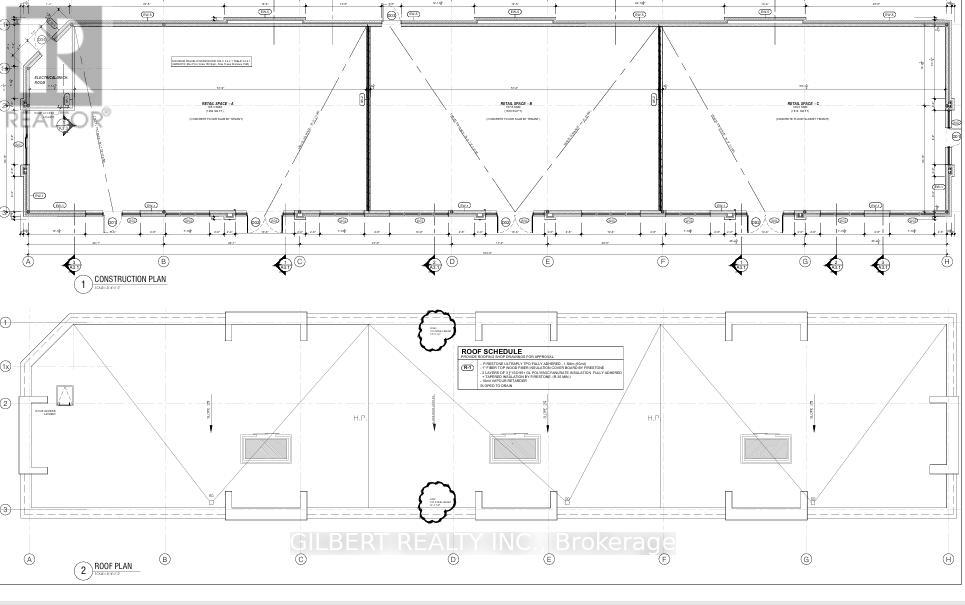
5614
Total Sq Ft
Retail Description
NEWLY BUILT RETAIL OPPORTUNITY AVAILABLE FOR LEASE IN COBOURG. HIGH VISIBILITY CORNER (KING ST E/BROOK RD N) ANCHORED BY TIM HORTON’S NEXT TO RESIDENTIAL. THIS NEW 5,614 SF DEVELOPMENT CAN BE PARTITIONED INTO 2 or 3 SMALLER UNITS. DESIRABLE DC-30 ZONING PERMITTING A WIDE RANGE OF RETAIL USES. AMPLE PARKING WITH DRIVE THROUGH & PATIO SPACE AVAILABLE. BUILDING SHELL NOW COMPLETE ALLOWING FOR ANY TENANT LAYOUT OR CONFIGURATION TO BE ACCOMODATED. DRIVE THROUGH AVAILABLE. (id:62692)






