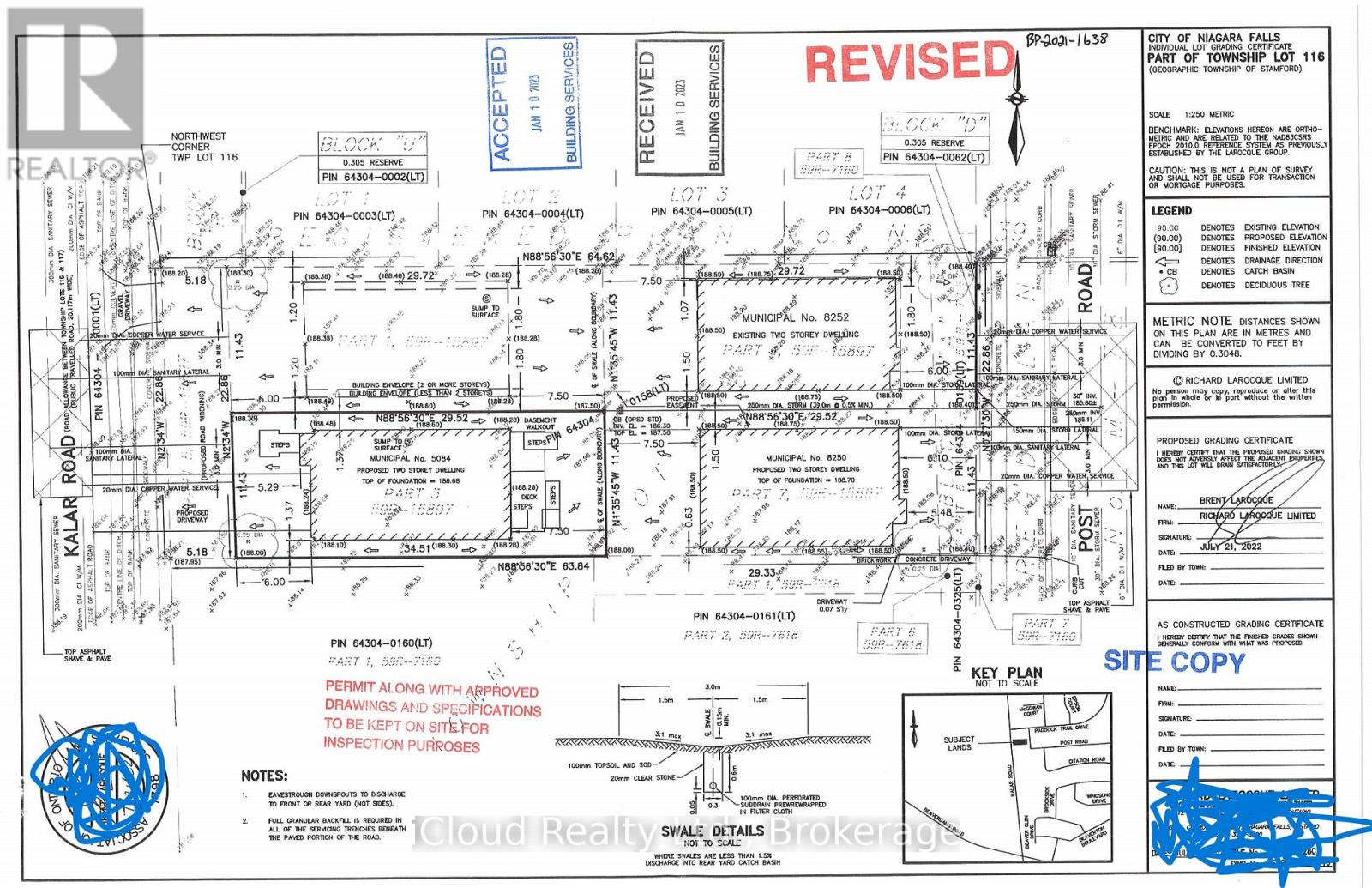
5084 KALAR NIAGARA FALLS ROAD
📍 5084 Kalar Niagara Falls Road, Niagara Falls (Ascot), Ontario, Canada, L2H1T2, 180, 82, L2H1T2
1.00
0
Lot Size
Land Description
Introducing Your Dream Home Opportunity! Nestled in the coveted neighborhood of Kalar Road, Niagara Falls, This stunning detached home boasts Spanning approximately 2700-3000 sq ft, Featuring 4 generously sized bedrooms and 4 bathrooms, This residence has received full permit approval from the City of Niagara Falls, with development charges already paid. Your vision can become a reality here. Start construction any time. The convenience factor is unbeatable. The property has a hydro line already in place, simplifying your construction process. For families, this home is situated near exceptional schools you’re just minutes away from major retailers like Costco, Walmart, LCBO, and an array of local shops and restaurants. The jewel in the crown is the vacant, serviced lot that comes with this property. It’s your chance to design and build the home you’ve always dream OF, This vacant lot won’t be available for long. Your dream home journey starts HERE , make it a reality today (id:62692)






