40 ELM Street Unit# 240

  • 8 months ago
OfficeOntarioSudburyP3C1S8Sudbury, Ontario, Canada, P3C1S8

Sudbury, Ontario, Canada, P3C1S8

Sudbury, Ontario, Canada, P3C1S8

Basics

  • Date added: Added 8 months ago
  • Category:
  • Lot size: 0 sq ft
  • ListOfficeName: RE/MAX CROWN REALTY (1989) INC., BROKERAGE (SUDBURY)
  • MLS ID: 2120839

Description

  • Description:

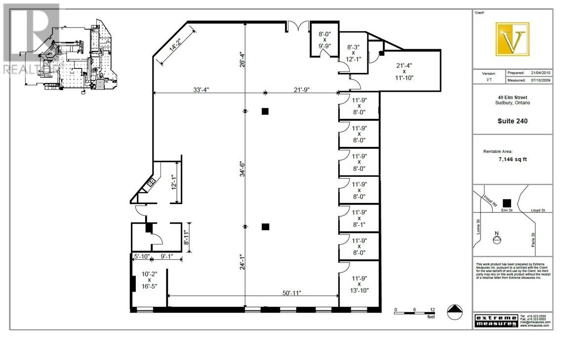
    Located in the heart of Downtown Sudbury, Elm Place is a premier, high-traffic destination offering excellent visibility, a diverse tenant mix, and convenient access for both customers and employees. This Class A property provides flexible space options ranging from 200 to 50,000 square feet, accommodating businesses of all sizes and industries. Elm Place features Sudbury’s largest downtown parking facility, which has undergone significant upgrades. The three-story garage offers 950+ stalls, including ground-level, covered, and upper-level parking. The building has also undergone extensive renovations, boasting luxury finishes throughout its common areas, such as marble flooring, elegant cornice details, and more. On-site amenities enhance both tenant and visitor experiences, including a food court, gym, movie theatre, spa, and the Radisson Hotel. Conveniently accessible from Elm Street and Ste. Anne Road, this prime location benefits from a daily traffic count of 28,847 vehicles and foot traffic of approximately 5,000 people per day, ensuring exceptional exposure and accessibility. This 7,146-square-foot space features a large open area (ideal for cubicles), along with multiple private offices and meeting rooms. Secure your space in one of Sudbury’s most dynamic commercial hubs! Contact us today for leasing details. (id:62692)

    Show all description

Building Details

  • Sewer: Municipal sewage system

Amenities & Features

  • Waterfront available: No
  • OpenParkingYN: No
  • AttachedGarageYN: No
  • GarageYN: No
  • CarportYN: No
  • PoolYN: No
  • CoolingYN: Yes
  • Cooling: Central air conditioning
  • Total Fireplaces: 0

Ask an Agent About This Home

Phone
By clicking the «REQUEST INFO» button you agree to the Terms of Use and Privacy Policy

Share this property

Copy

Or share with

Powered by Estatik