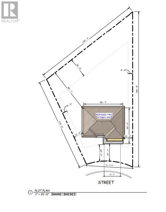
38 Westport Street
📍 Sudbury, Ontario, Canada, P3B1T7, 395, 82, P3B1T7
160000.00
0
Lot Size
Land Description
Vacant lot in prime Hazelton subdivision! The lot is cleared and services are at the lot line, and it is possible to build to suite. The lot also comes with a set of plans if needed. (id:62692)



