361 CANNON Street E

  • 9 months ago
IndustrialOntarioHamiltonL8L2C3361 CANNON Street, Hamilton, Ontario, Canada, L8L2C3

361 CANNON Street, Hamilton, Ontario, Canada, L8L2C3

361 CANNON Street, Hamilton, Ontario, Canada, L8L2C3

Basics

  • Date added: Added 9 months ago
  • Category:
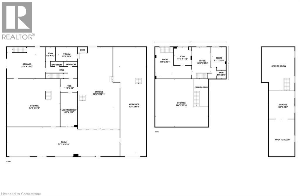
  • Area: 7568 sq ft
  • Lot size: 0 sq ft
  • SubdivisionName: 141 - Landsdale
  • ListOfficeName: Right at Home Realty
  • MLS ID: 40754589

Description

  • Description:

    Prime Commercial Building with Additional Parking Lot – For Lease in Downtown Hamilton with Drive in bay and office space. A fantastic opportunity to lease a freestanding commercial building with 7,568 sq ft of flexible space, ideally situated in a high-traffic, high-visibility area of Downtown. With a generous lot size 97.11 ft x 115.24 ft and BOUNS vacant parking lot 371 Cannon Street East 90.19 ft x 39.07 ft it makes perfect place for staff and customer access – approximately 25 parking available. The main property has been most recently used as an auto parts store. Zoned C2, this property supports a wide range of commercial uses such as medical Clinic, Veterinary Service, Financial Establishment, Retail and much more—making it ideal for various types of businesses looking to grow or relocate. Whether you're launching a new venture or expanding your current operations, this space offers exceptional flexibility, zoning advantages and well-established commercial corridor with strong foot and vehicle traffic and rare on-site parking in the heart of the city. (id:62692)

    Show all description

Building Details

Amenities & Features

  • Waterfront available: No
  • OpenParkingYN: No
  • AttachedGarageYN: No
  • GarageYN: No
  • CarportYN: No
  • PoolYN: No
  • CoolingYN: No
  • CommunityFeatures: High Traffic Area
  • Total Fireplaces: 0

Ask an Agent About This Home

Phone
By clicking the «REQUEST INFO» button you agree to the Terms of Use and Privacy Policy

Share this property

Copy

Or share with

Powered by Estatik