18 EDWARD STREET
📍 18 Edward Street, Quinte West (Trenton Ward), Ontario, Canada, K8V2C2, 336, 82, K8V2C2
239900.00
0
Lot Size
Land Description
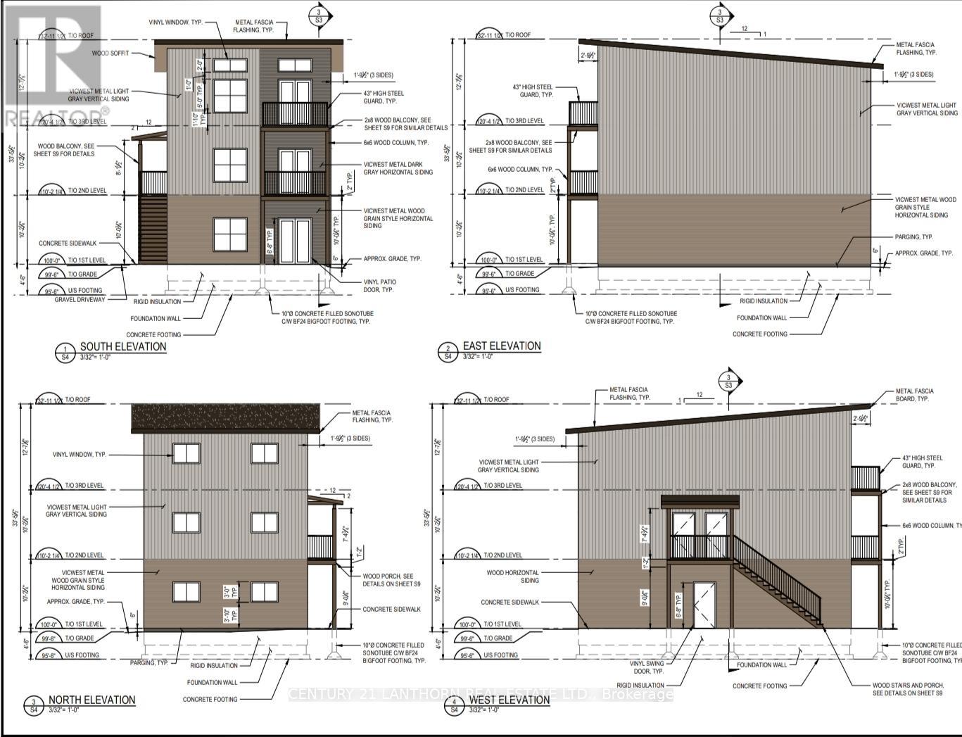
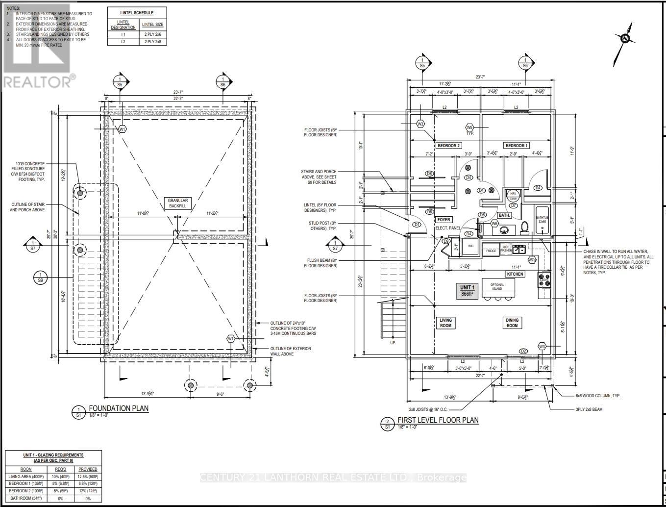
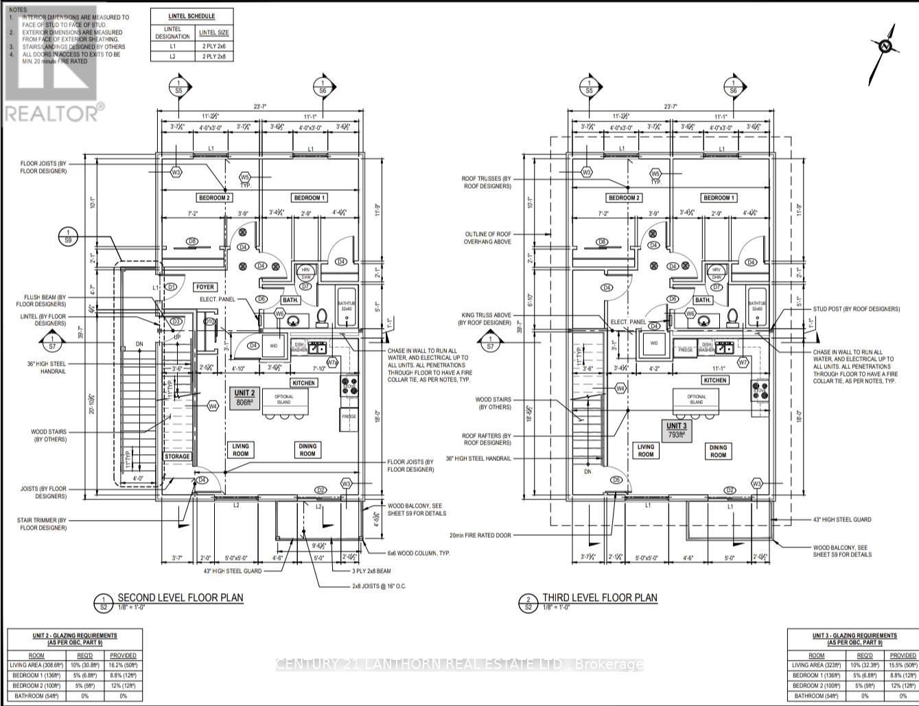
DEVELOPERS & INVESTORS An exceptional opportunity awaits with this shovel-ready building lot, fully prepped for immediate development. The approved plans allow for the construction of a modern triplex, with each unit thoughtfully designed to feature open-concept living areas, two spacious bedrooms, and soaring 9-foot ceilings through out appealing to todays renters and end-users alike. All preliminary work has been completed, including a full energy audit and finalized HVAC design, ensuring a smooth and efficient build process. An after-completion appraisal has already been conducted, valuing the finished triplex at $1,290,000, offering significant upside and long-term value. Whether you’re a seasoned developer or a strategic investor, this is a rare turnkey opportunity to build equity from the ground up. **Full development package available, enquire about seller building to suit** Taxes not yet assessed.*** (id:62692)








