13 ST DAVIDS STREET W
📍 13 St Davids Street, Thorold (Thorold Downtown), Ontario, Canada, L2V2L1, 679, 82, L2V2L1
1299000.00
0
Lot Size
Land Description
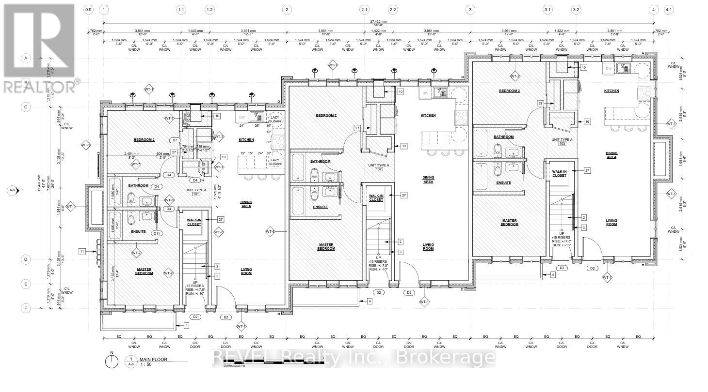
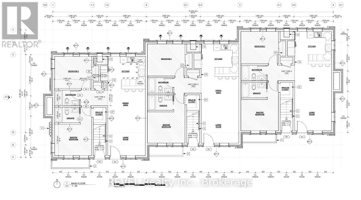
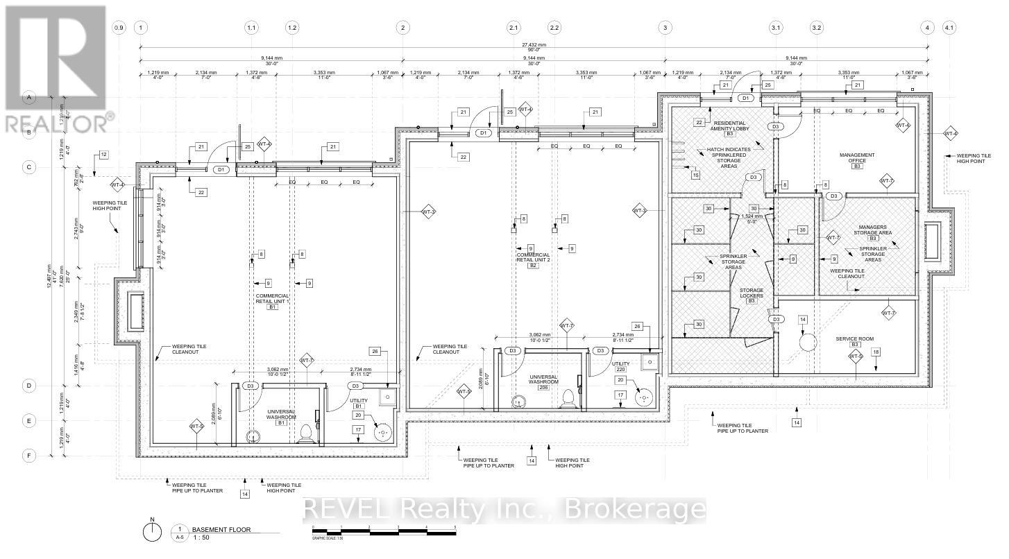
SITE APPROVED for a 9 unit building including 6 residential and 3 commercial units. This is an incredible investment opportunity located in the heart of downtown Thorold. Location is optimal as it is close to all amenities. Preliminary legwork has been done. Nothing to do but obtain a building permit. Buyer to do their due diligence with the City of Thorold for permitted uses. (id:62692)






