12840 WESTON ROAD
📍 12840 Weston Road, King, Ontario, Canada, L7B1K4, 328, 82, L7B1K4
999000.00
0
Lot Size
Land Description
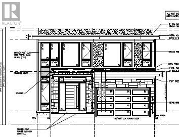
Building Lot is permit ready. Drawings for4153 sq ft home are available upon request. Building permit has been paid $17,000.00. EXTRA DEEP LOT. Plans and room layout can be modified. WELL and SEPTIC are required. Flexible terms. BUILD YOUR DEAM HOME! All offers welcome ! (id:62692)

