11 MAIN ST (432/438 DAVIS) E
📍 11 Main St (432/438 Davis), Newmarket (Central Newmarket), Ontario, Canada, L3Y3Y1, 1059, 82, L3Y3Y1
3600000.00
27459
Total Sq Ft
Retail Description
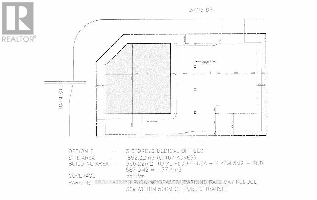
Hello Developers and Investors, excited to bring to your attention a very rare opportunity to own an assembly of lands located within the Urban Centres Secondary Plan. This plan identifies that the subject properties are within the Davis Drive Character Area, which permits a variety of uses including low to mid-rise residential, retail, office, live-work, places of entertainment, and post-secondary facilities. Building heights are permitted to range from 3 to 8 storeys, with densities of 1.5 to 2.0 FSI. Additionally, with bonusing, heights can be increased to 10 storeys. (id:62692)




