0 TEAL ROAD
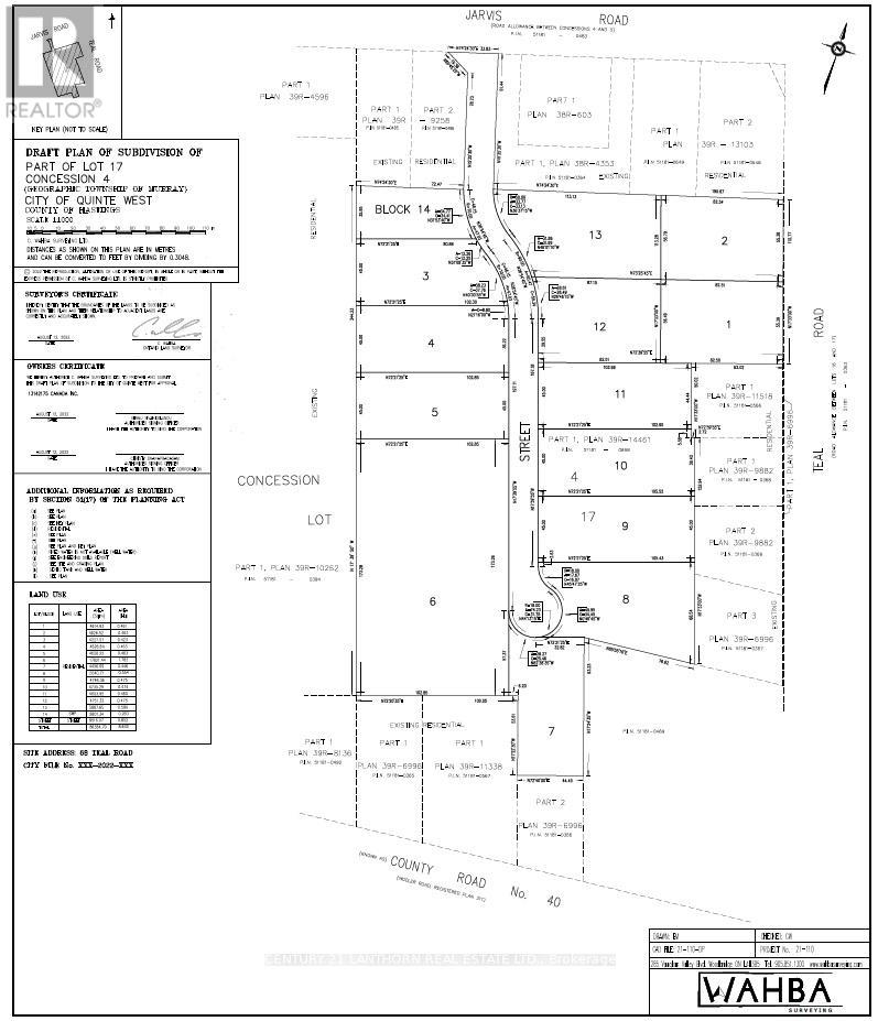
📍 Teal Road, Quinte West (Murray Ward), Ontario, Canada, K8V0A9, 413, 82, K8V0A9
1990000.00
0
Lot Size
Land Description
21.4 acres of residential development land in the Hamlet of Wooler. Draft plan of subdivision approved for thirteen estate residential lots. Excellent location, minutes to the 401. The studies, plans and reports required for the draft plan approval are available for review. (id:62692)









